Architects: Coll-Leclerc and Son Estudi
“Espais entre bastidors” (“Backstage spaces”) proposes discoveries in the Casa del Sucre, transitions between large and small spaces, high and low, compressed and expanded, public or reserved. The project establishes a commitment to the city, society and technology: to create, connect and open itself to the public space; welcome, sensitize and excite the user; improve, build sustainably and take care of our heritage.
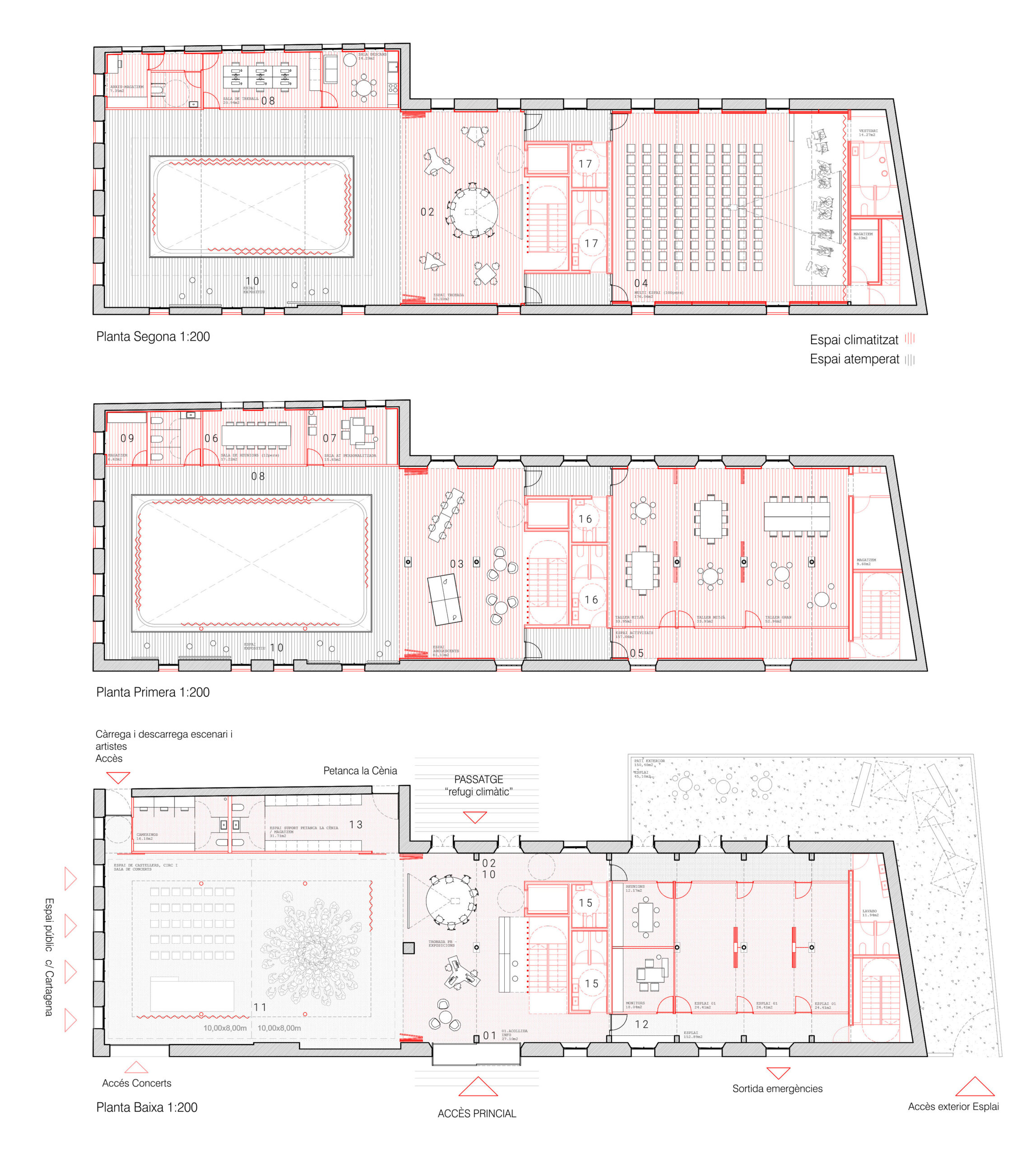
Strengthening the center to stabilize the body: Through the square that generates the “Rec de la nau”, creating a passage – public space as a climatic shelter. The most public and open spaces are in the center of the building, as well as the elevator core, stairs, services and small, more reserved spaces. All of them create a vertical central body of the building as an exchanger that concentrates promenades and places to hang out between the large program pieces of the building.
Emptying the ends to give wings: On both sides of this central body, where the large pieces of the program are located, we find diaphanous, multipurpose and adaptable spaces. On the south-east side is the playground on the ground floor (in contact with the exterior), the activity area on the first floor and the meeting room on the second floor (totally diaphanous). In contact with c/Cartagena is the space for “castellers”, circus and concert hall. This program opens up the opportunity to work with height. It relates directly the central public spaces of the building as viewpoints towards the scenic space. The project makes training and shows possible with a need for space and volume in m3. Freeing this space on the ground floor allows for great flexibility of aggregation both in the interior spaces and towards the public space outside in the street. The curtains decorate the large spaces, conditioning them, as well as recalling the old fabric curtains of Barcelona
Passive, reactive and soft skins: The energy strategy is based on maximizing passive systems and minimizing energy losses in the building. The idea is to balance the transmission of energy between the different parts of the program depending on their demand. The larger rooms face the problem of cooling by taking advantage of the cross ventilation that allows the transversal distribution proposed by the project. In addition to ventilating and dissipating heat, opening the windows at night can reduce the interior temperature by five degrees. To make the rooms dark, thermally damp, as well as to reduce the reverberation and increase the acoustic insulation, thermal and velvet curtains are proposed. They create an air chamber with the façade and allow a regulation of the interior space in conjunction with the circumstances. The proposal is conceived as spaces within other spaces, just as the interstice spaces used in shows that are utilized for complementary, expansive or isolated uses.
The fragility and care towards history: The industrialization of the elements, the dry assembly, the traceability of the materials, their life cycle and their contribution to the energy balance of the building are constructive conditions of the project. Sanitation, rehabilitation and consolidation actions will be carried out using traditional techniques for the historical restoration of existing materials.
The main strategies of material action are those of restoration, regeneration and conservation of the existing heritage. Always prioritizing the conservation of all the original elements. Depending on the state of the old building, actions are taken to maintain, through materiality, a continuity in the historical and heritage memory, both in terms of appearance and of the tradition of technical execution. At the same time, the project enables programmatic flexibility and responds to the needs of sustainability and care of our contemporaneity.
Finally, the project reflects on the constructive difference between the original body of 1893 and its extension in 1910. In building 02, a large scenic space opens up, capable of enabling shows at great height. In building 01, three floors that give rise to three programmatically interchangeable spaces to add more future versatility to the building. This position of maximum respect towards pre-existence is also reflected on the facade, maintaining the constructive distinction as a reflection of the inner program.

